In water treatment engineering, the dosing process is a crucial step in ensuring the stable operation of the system. Whether it's industrial circulating water, wastewater treatment, tap water plants, or boiler feedwater, any process involving flocculation, sterilization, corrosion inhibition, or descaling relies on the precise dosing of chemicals. In recent years, integrated dosing devices have become increasingly popular among engineering projects and water treatment companies. Many people wonder: can they really improve water treatment efficiency? The answer is yes, and the advantages are very significant.
1. Automated Control Improves Dosing Accuracy
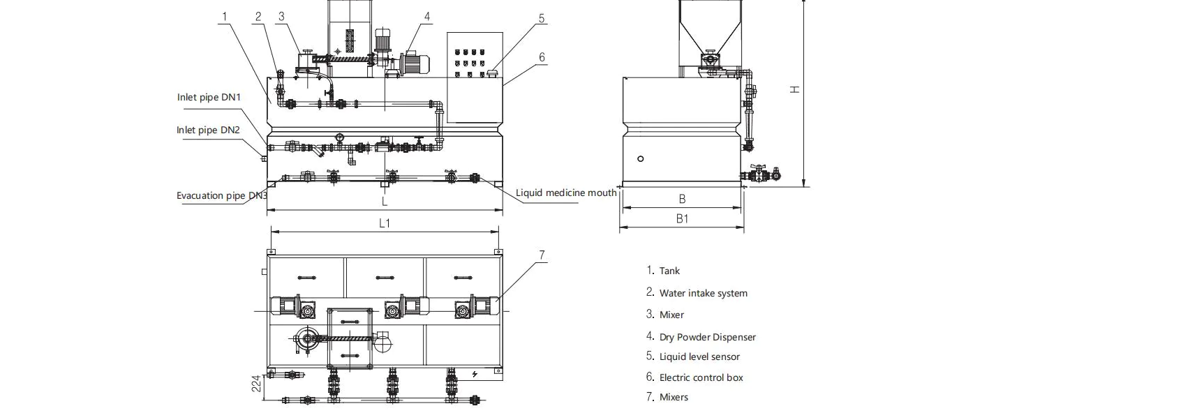
Traditional dosing methods typically rely on manual adjustment of the dosage. Manual operation is not only unstable but also easily affected by factors such as experience, habits, and environmental changes, leading to fluctuations in dosage and thus affecting the overall water treatment effect. Integrated dosing devices are different. They integrate metering pumps, chemical tanks, mixers, pipelines, valves, meters, and control systems into one unit. Through an automated module, they monitor water quality parameters in real time and automatically adjust the dosage according to set logic, ensuring precise and stable dosing.
Precise dosing not only improves treatment efficiency but also reduces reagent waste, resulting in a substantial reduction in operating costs. For conditions with frequent fluctuations in water quality, the advantages of automated control are even more pronounced.

2. Integrated Design Reduces Installation Difficulty
Traditional dosing systems often require the separate purchase of multiple devices, followed by on-site installation, piping, and commissioning. This process is not only complex but also prone to problems such as interface incompatibility and unreasonable layout. Integrated dosing devices, on the other hand, adopt a modular structure, pre-integrating all core components onto a single frame or corrosion-resistant base. Piping, electrical, and linkage commissioning are completed before delivery; on-site installation only requires connecting the inlet and outlet water pipes and power supply.
This design significantly improves engineering installation efficiency and reduces human error, making the system more stable and reliable. Integrated dosing devices offer a clear advantage for projects requiring rapid delivery, tight schedules, or limited equipment space.
3. Higher Dosing Efficiency
Integrated dosing devices, through optimized piping design, improved pump efficiency, and integrated automatic stirring and real-time monitoring functions, ensure more uniform mixing of reagents before dosing, allowing them to take effect quickly after entering the system. Meanwhile, the automatic control system can adjust the dosage in real time according to changes in water quality, making the entire water treatment process more responsive.
For example, in a circulating cooling water system, when changes in water quality lead to rapid growth of bacteria and algae, traditional manual dosing may be delayed by several hours or even longer. The integrated system, however, can identify the changes immediately and accurately add chemicals, effectively preventing water quality deterioration.
4. Reduced Operating Costs
Integrated dosing devices not only improve dosing efficiency but also reduce costs on several levels:
More precise chemical dosage, reducing waste
Automation reduces the frequency of manual inspections and operations
Higher system stability, reducing equipment corrosion or scaling caused by abnormal dosing
Remote monitoring reduces on-site management pressure
For enterprises, this is not only about saving operating costs but also a key means of improving management efficiency.
5. Enhanced Stability and Safety
Integrated dosing systems, through standardized design, avoid common problems found in traditional systems, such as: Pipeline leaks, uneven reagent mixing, pump and electrical mismatch, inadequate tank structure, and safety hazards caused by human error. The equipment undergoes comprehensive testing before leaving the factory, ensuring more stable operation and a higher safety factor. For industries with stringent water quality requirements (such as power plants, food factories, and pharmaceutical industries), integrated dosing systems can significantly reduce risks.
Integrated dosing systems can indeed significantly improve water treatment efficiency. This improvement is not only reflected in dosing accuracy and automation but also in installation convenience, operational stability, and overall cost optimization. For modern water treatment systems, choosing integrated dosing systems is not just a trend but one of the best solutions for improving efficiency, ensuring safety, and reducing costs.

















